Продолжение поста «Проектируем Таун 120м2»1
Продолжаем работу над планировками таунхауса. Безусловно, комментарии пикабутян - это отдельный срез культуры, в которой мы живем. предыдущий пост: Проектируем Таун 120м2
По этому конструктивная критика была принята и планировку отдельных элементов пришлось изменить, например:
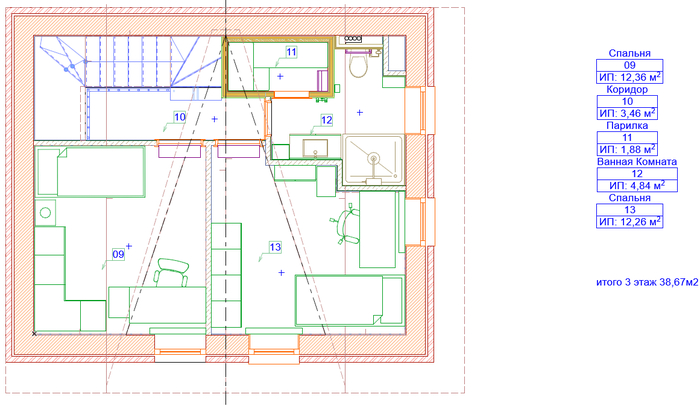
дельный совет проектировщика газопроводов с 30ти летним стажем по поводу расширения спален на третьем этаже. ну, ок. спальни с 11 стали 12м2. За счет чего?: чуть уменьшил санузел и существенно уменьшил и изменил холл третьего этажа. также в холле убран вход на чердак, поскольку теперь он будет классическим для чердаков в виде люка в потолке холла.
в итоге вот что получилось.
а вот как было до внесения изменений:
ну и добавлю вид коридора на третьем этаже после внесения изменений, выполненный с учетом стандартных возможностей визуализации архикада:
2. еще одно дельное замечание по поводу неудобства размещения мягкой группы в гостиной на первом этаже - неудобно смотреть телевизор. Принимается. Пришлось немного изменить концепцию расстановки мебели в кухне-гостиной:
приложу исходную планировку для сравнения результатов:
получился такой вид гостиной:
Место установки котла определено застройщиком - правый верхний угол кухни. меняться не будет в связи с геморроем. Котел будет коаксиальным, двухконтурным. Остальные коммуникации отопления, водоснабжения, водоподготовки, гвс, хвс будут размещены под лестницей. там же размещается ввод канализации и воды в таун.
Остальные замечания неконструктивные, да и бредовые. по этому они не стоят нервов проектировщика и моих ответов. Как я понял, многие удивлены спальнями по 11-12 метров, ну дак это же таун для семьи из пяти человек, три этажа по 40м где лестница 20-30% площади занимает а не дом в один этаж. Так что идите лесом.
Двигаемся дальше! Вперед к инженерному проектированию!
Всем привет!
Моя мама (65 лет) хочет продать 2 квартиры и купить небольшой домик с такими критериями:
- Ленобласть/Московская область и рядом с ними, либо южнее с более приятным климатом (что-то вроде Новороссийска)
- коттеджный поселок/таунхаус с транспортной доступностью (чтобы добираться без машины до инфраструктуры (поликлиника/магазины и тп)
- хорошие соседи, с которыми можно было бы общаться
Может кто-то знает что-то похожее на это описание? Отзовитесь)
P.S рекомендации по поводу надо это вообще или нет, что было бы лучше сделать с двумя квартирами, а также другие, не относящиеся к вопросам выше - не интересуют :)
Проектируем Таун 120м21
C началом нового года появился новый объект - таунхаус. три этажа 120м2 для проживания многодетной семьи с тремя детьми. Впереди этап проектирования и я постараюсь осветить этот процесс. А если будет интересно, то и этапы реализации проекта в строительстве.
Первый этаж предусматривает по классике: прихожая, гостевой санузел, гостиная-столовая и техническое помещение под лестницей. Из хотелок заказачика - обеденная зона на 4-6 человек, зона для просмотра ТВ и возможность устройства кинотеатра с проектором и экраном. Вроде готово. Остаются вопросы на будущее - все ли оборудование помещается под лестницей, а его будет немало - узел учета воды, расширительный бак отопления, коллекторный шкаф отопления а так же ГВС и ХВС, система водоподготовки, бойлер косвенного нагрева. Котел двухконтурный размещается в правом верхнем углу гостиной. Так что пока оставим как есть до появления результатов инженерного проектирования.
Второй и третий этажи классически предусматривают спальные зоны - на каждом этаже по две спальни и санузлы. в санузле второго этажа разместим постирочную зону со стиралкой и сушилкой. В санузле третьего этажа предусмотрим небольшую парилку.
Планировки вроде бы заказчику нравятся. Вопросы, которые могут существенно изменить планировки будут решаться на этапе инженерного проектирования: получится ли разместить приточно-вытяжную установку на чердаке? Будет ли достаточным существующего отверстия в перекрытии для разводки воздуховодов? Ввиду ограниченности по эл мощности приточная установка будет с водяным теплообменником с подогревом за счет мощности котельной. Так что остается еще один важный вопрос с размещением оборудования системы отопления и теплоснабжения под лестницей первого этажа.
Вернусь с ответами после инженерного проектирования.
Панамка открыта...
Телеграмм канал: t.me/apris2025
Продолжение поста «Экономия на строительстве большого модульного дома или таунхауса»3
3d вариант - создано с помощью Blender, Krita, нейросетей - то есть официально бесплатного по.
Продолжение поста «Экономия на строительстве большого модульного дома или таунхауса»3
Футуристичная пирамида на основе морских контейнеров *
* И немножко стекла (можно б.у)
6 контейнеров + промежутки между ними - 135 м2
С учётом мансарды - 225 м2
Применима концепция растущего дома - начать с 1 контейнера и постепенно добавлять
Можно предусмотреть и обратную процедуру - убирать лишние контейнеры, если они перестали быть нужны
Срок службы морских контейнеров можно продлить с помощью катодной защиты - используют для трубопроводов и морских судов.
Достаточно подавать небольшое, безопасное напряжение на металл контейнера и он в принципе не будет ржаветь.
Это помимо того, что по стандарту морские контейнеры изготавливают из легированной стали, которая и так должна ржаветь медленно.
Экономия на строительстве большого модульного дома или таунхауса3
Уменьшение количества модулей до 2 х раз









