А какие-то дураки учатся по 4 года




Вот такая вот реклама мне попалась, инфоцыгане уже учат людей, как дома рисовать и впаривать доверчивым гражданам.
@Agrocult без работы ещё долго не останется.




Вот такая вот реклама мне попалась, инфоцыгане уже учат людей, как дома рисовать и впаривать доверчивым гражданам.
@Agrocult без работы ещё долго не останется.
Присоединюсь к волне постов.
Жаль что не додумался это сделать ДО постройки дома, тогда было все сумбурно, время летело, не до этого было.
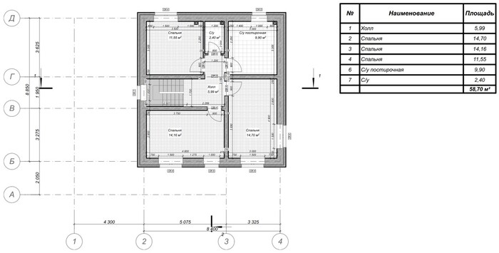
И, тем не менее, хотелось бы услышать конструктивную критику на планировку от самостройщииков, архитекторов, прорабов, etc.
Мастерская изначально планировалась как баня, пока еще думаю оставить ли это баней или убрать перегородку и сделать большой гараж.
Спальни на втором этаже 14,16 и 14,70 квм - это, соответственно, детские комнаты. С/у постирочная - ванная со шкафом по ширине всей стены а-ля гардеробная, а также комната для стирки/сушки.
Если интересно, попробую собрать пост по этапам и стоимости строительства такого дома, регион Новосибирская область.
Решил поделиться с вами своим опытом, признаюсь до этого ничего не строил, учился на своих ошибках и на хозблоке.
приобретя участок 10 соток недалеко от Москва-реки, решили сначала приобрести бытовку чтобы понять для себя что такое дача. Показав участок родителям, они тоже решили заказать для себя хозблок, с этого и началось строительство дома из хозблоков.
Так как строить капитальный дом казалось дорого, после недолгих раздумий решили остановиться на каркасной технологии.
подумав, заказали сваи, после чего на них были перенесены бытовки( кстати о бытовках, утепление 100мм минваты).
Решил внутреннюю часть утеплять пол200 стены и потолок 150мм.
Взял отпуск и начал строиться, думал успею за один сезон, какже я ошибался)))
Начал с обвязки, делал из бруса 200 на 150, 150 на 150 в тот момент просто не было нигде в продаже.
стриол из доски естественно влажности, так как разница с сухой строганной доской была почти в 2 раза.
Самое сложное было поднимать стены в одного.
Сразу же сделал внутренние стены под санузел и детскую комнату, и решил оставить большую гостиную.
Крышу нанял соседа в помощь, он как раз себе дом сам построил, а я как выяснилось не очень хорошо дружу с высотой.
В итоге лето как и отпуск закончился и я понял что в зиму лучше закрыть дом, обшил передние стены ветров-влагозащитной пленкой, обшил ось, и ушел в зиму.
По весне начал укладывать утеплитель и понемногу доделывать дом, так как стояла задача на лето отправить сюда жену с дочкой из города на отдых.
Что в итоге, дом изнутри и снаружи обшит вагонкой. На полах линолеум, самое долгое было разводить электрику и водопровод с канализацией. Об этом могу рассказать в другом посте, если кому будет интересно.
в планах на уже этот год, переутеплить бытовки и наконец-то заняться восстановлением своего любимого автомобиля.
Всем спасибо за внимание.
Ну вот и прошли новогодние праздики (наверное не у всех, но лично я завтра по делам). Отдохнув с семьёй и собравшись с мыслями решил понатыкать ещё немного текста.
Прошлое повествование закончилось на том, что я раскидал блоки по полу и вместе с детьми и женой радостно бегали со всякими коробками, теми-же блоками и рулеткой, смотрели, как в реале будет, удобно ли встанет ли вся мебель и т.д.
Чуть здесь сдвинули, чуть там подправили. Внёс изменения в чертежи, распечатал их с новыми размерами и замешал смеси м300, на которую и выложил первый ряд блоков по лазерному нивелиру.
Прямо на перекрытие выложил. Подшлифовал огрехи. Постоял, подумал, почесал затылок. Ладно, думаю. Перегородки из газосиликата (100мм и 150мм, в зависимости от назначения и соседства комнат, а так же от коммуникаций в перегородках) - штука не лёгкая. Хоть перекрытие на них и рассчитано - дай ка я армирую первый ряд. Из обрезков нужной длины у меня была 14 и 18я арматура, но покопавшись получше я нашёл нужное количество 12й арматуры, которую пришлось выковыривать с самого низа пачки. Пропилил штробы в первом ряде блоков, 40х40, заполнил наполовину клеем, вдавил арматуру и замазал сверху. Душа так спокойнее будет. Нарубил гибких связей из оцинкованной полосы, купил ведёрко саморезов 3х50мм золотистых. Замешал ведро клея и понеслась!
В одной из перегородок, в планах, было сверлить воздуховоды. Для вентиляции. Была куплена коронка для этого действа. Но как я не старался - ничего не вышло =( И посуху, и по воде, и с кондуктором, даже окна в коронке пропилил...
Но блок раз за разом скалывался. Убив целый день и блоков 5-6 принял решение, что сия технология мне не по зубам =(
Пилил пилой вглубь блока, с одной стороны подрезал мультитулом (убитой пилкой по дереву), с другой - упилался лопаткой перфоратора и скалывал. Так дело пошло. Внешнюю стенку создам из гипсокартона, проштукатурив и прокрасив воздуховоды гидроизоляцией. Почти 4 дня я ставил лазер, мазал клеем блоки и шлёпал по ним киянкой, крепя каждый 2й. ряд гибкими связями к внешним несущим стенам. И пилил. Много пилил. И чтоб пыль лишнюю не поднимать - пилил ручной пилой.
Пока не добрался до уровня верха дверей. Нужны перемычки. Ну технология уже известна - штробим, суём арматуру, клеим...
Ну и ставим на стены!
Затем последний ряд и вот уже готовы перегородки. Остаётся раскинуть электрику по комнатам, вклеить вставки между потолком и перегородками (по 70мм) и запенить всё это счастье.
В итоге 7 полноценных дней на изготовление 5 помещений из одного большого. Верхние ряды ставил с лестницы, засунув в нее 2 резьбы, на которые прекрасно вставали как ведро с клеем, так и блок
Ещё на этапе "до снятия опалубки" я вырезал в оной окна до бетона и поставил на полу отметки, прописав высоты карандашом на стене. После снятия опалубки и возведения перегородок должен был появиться прогиб перекрытия в 5-8мм, по рассчётам инженера. И я это хотел мониторить. Бесполезно - показания дальнометра не изменились никак и по сей день, даже миллиметра прогиба не появилось. Значит нормально сделал всё =)
В доме тепло, за декабрь заплатил 2000р за отопление. На окнах второго этажа много конденсата - вентиляция естественная не справляется с влагой из газоблока и клея. Проветриваю, на ночь оставляю одно окно на микропроветривание, чтоб тяга была, без него тяги в вентиляшку нет совсем - дом получился герметичным. Ничего, просушу. Ещё штукатурить это всё... Вооот там воды будет - жесть.
Всем счастья и удачи в наступившем новом, 2025 году.
мне пришлось впервые зарегистрироваться здесь с 2017ого года, потому что я не могу смотреть на подобное безобразие. гордитесь, автор, ни один пост еще не взволновал настолько чтоб я наконец-то это сделала. во-первых, конечно очень сложно что-то предполагать не имея хотя бы размеров по коробке. но прикидываю на глаз. обводка по стенам и даже несущую колонну/часть стены оставила на месте. во-вторых, единственная ванна когда у вас дом? да еще чуть меньше чем комната ребенка? а вам с женой идти через весь дом чтоб покакать? решительно нет. блок кухни-столовой-гостиной можно отделить дверью, если уж так любите двери. в мастер-спальне своя ванная, там же хоз.блок. ну а ребенок или гости таки будут ходить в общую ванную, которая должна быть при входе. стрелочками окна. нервно закурил.
Посыл про строить под себя, под образ жизни и перспективу правильный. Про то, что архитекторы, дизайнеры, проектировщики бесполезны - хуйня полная. Не может основная часть обывателей сама сделать комфортно, красиво и хорошо. Возможно и вы тоже. Вы просто говорите про уебищные безликие халупы, скорее всего, где никакой нормальный дизайнер или архитектор не работал. 25 лет назад так и было, возможно, когда вы строились, сейчас огромная база хороших проектов, много дизайнеров хороших. Мало того, чтобы дом был удобным, он должен нравиться и быть красивым и внутри и снаружи. Безапелляционные заявления, что там не так и не то, гостиная не нужна и коридоры итп - хуйня также, это вкусовщина. Если вам в гостиной делать нечего - это не значит, что остальным также. Я в гостиной провожу кучу времени, например. Если у вас там хлам где-то, елка стоит 3 года и пр., не значит , что у остальных также. Мы живем вдвоем в доме ~200м2, террасы, балкон, гостиная с камином и пр., вся площадь используется, есть еще не сделанная теплая мансарда (3 эт) квадратов на 70-80 в плюс к текущей площади, если сделаем, будем использовать тоже. Сын 18 лет приезжает редко, но приезжает, комната под него есть, используется редко. Остальное все используется постоянно. Камин жечь любим, в гостиной кино посмотреть, музыку послушать или поиграть, на террасе поваляться с дровницей,мангалом и обогревателем, у каждого кабинет, кухня комфортная, спальня большая, комната сына - детская (условно) , ванная большая, пару туалетов, котельная, гардеробная. В коридорах живут собаки, шкафы и всякое красивое. Гости не часто, но есть куда спокойно пристроить. Вот и все эти 200-270м2. Для инструмента и пр хозблок. Считаю плюс-минус оптимальной площадью для дома, где не убьешься уборкой и обслуживанием без привлечения доп. людей. Это прекрасно, когда есть место каждому в своем углу позаниматься любимым делом, не особо мешая друг другу. Те кто пишут про то что 50м2 хватит, ну может и хватит, но скорее всего это компромисс очень сомнительный, пока не наступила совсем немощная старость.
