Проект «Свой угол». Часть 1 - Вводная
На строгий суд пикабушников, для увеличения собственной мотивации, а также для структурирования задач, запускаю небольшую серию постов по переезду в свой дом.
Исходные данные:
- 2 человека, 4 собаки и кот,
- Квартира в Москве,
- Сильное желание свалить из города,
- Один год опыта проживания в частном доме
- Понимание чего хочется
Цель:
- Участок не далеко от Москвы, чтобы в получасовой доступности большой ТЦ с кинотеатром, гипермаркетом и бутиками всякими.
- Площадь участка от 10 до 20 сот, с большими деревьями
- Дом каркасный одноэтажный 150-180 кв. м в американском стиле с гаражом.
- Электричество обязательно, газ опционально
Проблемы:
- Квартира в соцнайме - нужно приватизировать
- Хотелок много, но нет опыта стройки, и выбора подрядчиков и всего вот этого…
- Собственных средств помимо квартиры ноль целых, ноль десятых (зп есть, но вся уходит на жизнь)
Вот с такими вводными данными мы подходим к старту проекта :)
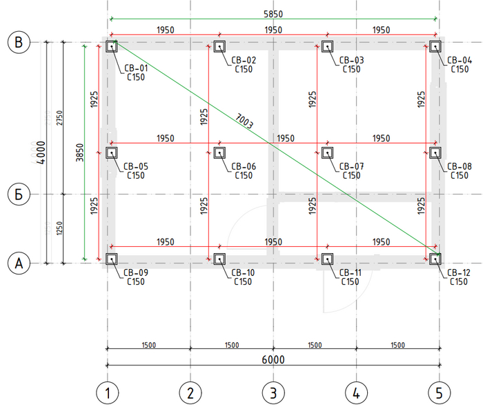
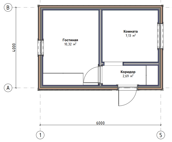
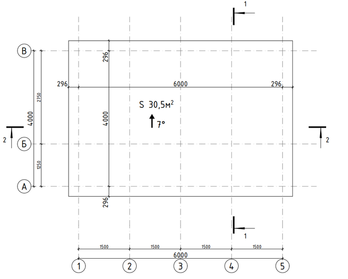
Планировку дома мы выбрали. Но боюсь до нее еще нужно будет порешать множество вопросов связанных с юридическими тонкостями получения собственности на квартиру.
Плюс нужно определится с пропиской, так как Московская вроде как какие-то там привилегии дает и не хотелось бы их потерять.
Плюс не совсем понятно, что происходит с рынком жилья, и получится ли относительно быстро продать жилье.
Я сейчас все это несколько сумбурно накидал, так как даже на первой итерации, задач оказывается очень много и декомпозировать пока не получается…Пока просто накидываю список…
Может у кого был подобный опыт, я бы с удовольствием перенял :)
А пока - все. Иду в сторону мечты! :)




















































