Сообщество - Строительство и ремонт

Строительство и ремонт

10 710 постов 48 328 подписчиков

Популярные теги в сообществе:

85

Планировка дома

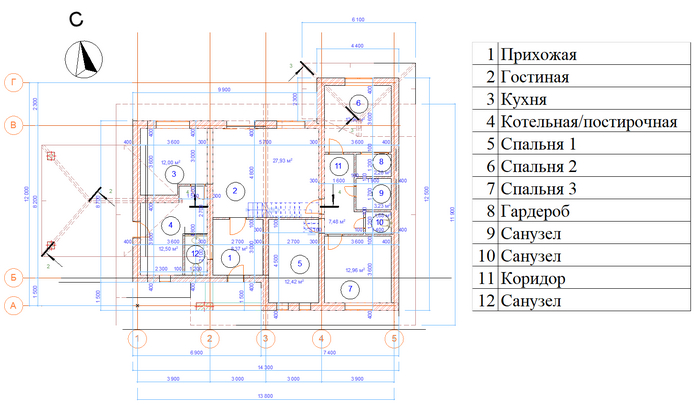
Всем привет! Вот и я доел новогодние салаты и решил поразмыслить над планами на лето. Имеется участок размерами 33(по фасаду)х30 метров в тихом районе одного небольшого города Воронежской области. Если все будет хорошо, то можно и построиться. Кстати, вот он:


Всю очень думал и гадал о том, как должен выглядеть дом мечты для небольшой семьи (3 человека, в перспективе увеличение личного состава до 4). Хочется что-то современное и практичное. Обрыскав все форумы, сайты с готовыми проектами, ютуб, нашел то, что очень мне пришлось по душе:

Этот проект дома воронежских архитекторов (в моем случае земляков), он реализован. Дом выглядит достойно, достаточно амбициозно, свежо да и вроде без цыганщины (да-да, все мы немного Тони).
Однако в исходном варианте есть некоторые решения, которые мне не нужны и не хочется за них переплачивать.
И в таком ключе у меня начался мозговой штурм, который хочу выставить на суд для общей критики:

Так же хочется иметь второй свет и антресоль свободной планировки для создания в ней игровой зоны:

Дом прозонирован и разделен на общую, приватную и техническую части

Немного объема:


Что смущает лично меня: основное освещение находится на северной стороне, спасет ли мой кошелек в последующем установка энергоэффективных окон - мне неизвестно.
Размеры помещений. Достаточно ли будет места на кухне, в технической зоне?
Приватная зона получилась немного вытянутой относительно основной части дома. Но пока остановился на таком варианте, чтобы не делать кучу ендов и других сложных элементов кровли и не приравняться по стоимости крыла самолета.
Очень прошу вашего совета и если есть другие конструктивные замечания, буду очень признателен. До связи в комментариях, постараюсь ответить на каждый интересный вопрос

Показать полностью 6
122

Записки строительного эксперта. Часть 7. 3d сканирование зданий

Объявили тут по всей стране переход на цифровое моделирование. В 2022 запланировали все бюджетные объекты проектировать в ВIМ. Не произошло чуда, ждём 2024)). Но техника под будущие "нужды" была приобретена.

Вкратце о работе: сканирует всё вокруг, измеряя расстояние до каждой из миллионов точек при заданном положении излучателя, с добавлением различной информации типа цвета, GPS координат и т.д. В последующем строится облако точек, распознаются плоскости, объекты и можно поднимать трёхмерные модели.

За время использования накопился целый блок вопросов, на которые сразу хочется ответить:

1. Нет, он не сканирует через стены, только то, что попадает в "зону видимости" луча
2. Нет это не вредно, при сканировании ни в вас, ни в предметах дыр больше не станет, тёща не сбежит, пупок не рассосётся
3. Свет ему не нужен, никакой. Исключение, если нужно облако точек с цветовой информацией
4. Фасады, планы и разрезы сразу не появятся, максимум - эскизы, которые нужно будет обводить в редакторах или поднимать 3d модель по облаку
5. Современные модели не боятся дождя и снега, но искажений не избежать, поэтому работать в тяжёлых погодных условиях не получится
6. Да, он дорогой. Очень. 5-7 млн. рублей за модели низшей ценовой категории
7. Никакие вешки и рейки ему не нужны. Только для облегчения сшивки в автоматическом режиме можно применять пронумерованные маркеры и специальные светящиеся сферы
8. Заявленные производителем сотни метров практически бесполезны, потому что оптические искажения при движении слоёв воздуха с различными температурами сводят эти «преимущества» на нет
9. Точность во многом зависит не столько от настройки прибора, сколько от правильно подобранных точек съемки и грамотной сшивки облаков между собой
10. Да, я от него прячусь во время съёмки, потому что при установке секторов съёмки для исключения себя любимого снижается количество возможных точек привязки облаков

Дальше расскажу какие самые интересные объекты сканировали и что из этого получилось, возможно, с картинками))

Показать полностью
5

Тут говорят проектики критикуют. Хотел бы послушать критику на свой проект. 

Тут говорят проектики критикуют. Хотел бы послушать критику на свой проект. 

И если есть у кого хорошие проекты на именно на радиаторное отопление, теплый пол только в санузлах, электрику и водоснабжение. В идеале бюджетные варианты.

Показать полностью 1
14

Ответ roppkabonuk в «Эскиз домика»3

И мой проект зацените!

1 этаж. Слева вход. Перед входом веранда (не показана). Потом гостиная, прямо кухня, налево лестница на второй этаж. Справа от лестницы вход в душевую с туалетом. В гостиной ещё камин, напротив трех окон.
За кухней котельная, там же всякие вещи. Из котельной выход на улицу и дверь в подпол. Вся водоочистка там, в подвале. Подвал маленький, не под всем домом. На 2 этаже 4 спальни и ванная комната. Туалет отдельный.

Показать полностью 2
162

Зачем в Советском Союзе повсеместно использовали полупрозрачные стеклоблоки и почему они до сих пор актуальны

В Советское время, при массовой застройке или возведении промышленных помещений, повсеместно внедряли стеклоблоки. Да и сейчас они встречаются довольно часто. Зачем в СССР их так массово использовали, ведь было проще установить оконный блок или гипсовую стену, чем собирать из блоков. 

История появления первого стеклоблока берет начало в 1881 году, когда американец Джеймс Пенникуик пытался заменить обычные оконные блоки в подвальных помещениях, на более крепкие. Вторая функция данных блоков была рассчитана на дополнительное освещение подвальных помещений. Благодаря своей особой структуре, свет перенаправлялся в разные части помещения, таким образом, была экономия на электричестве и искусственном освещении.

Сразу после появления, стеклянные блоки получили широкое распространение не только в Америке, Европе, но и в России. Их закладывали в форме декора и для дополнительного освещения темных помещений. 

Третьей полезной функцией стеклоблоков, стало сохранение тепла в помещении. Стеклоблоки полые и тем самым сохраняет тепло в помещении. 

Ну и последним пунктом, на который стоит обратить внимание, стало, что стеклоблок значительно крепче обычного стекла и его довольно сложно разбить, даже если кинуть в него камнем. При этом оконный блок разлетелся бы уже вдребезги.
Хотя первая конструкция стеклоблоков имела немного другой вид. Это была металлическая клеть со вставками из стеклянных призм. Со временем данная конструкция давала течь и разрушалась. После революции поставка стеклянных блоков в нашу страну прекратилась, поэтому пришлось придумывать аналогичную конструкцию. А вот уже в 30-х годах появились именно те, квадратные блоки, которые мы все еще можем встретить в домах или промышленных строениях.

Пик массового использования стеклоблоков в СССР распространяется на 60-70 годы. Они использовались повсеместно для декорирования строений, облицовки внутренних и внешних стен зданий, окон освещения лестниц и много где еще. В Советском союзе выпускали стеклоблоки в 3 цветах: зеленый, синий и желтый. Но особую популярность получили именно синие и зеленые. Еще отличительной особенностью от первых американских блоков были вариации с гладким, матовым или рифленым покрытием. Изготовление стеклоблоков регламентировалось ГОСТом 9272-75, где учитывалось про размеры, прочность и стойкость различным погодным факторам. Поэтому стеклоблоки были надежные, крепкие и могли служить годами, что не скажешь о других строительных материалах. Согласно госту, стеклоблоки должны были выдерживать значительные перепады температуры -40/+40 градусов, что позволяло использовать их повсеместно в СССР. Прочность сравнивалась с плотностью камней и действительно, так и есть.

Так почему же в Советском союзе прижились эти невзрачные стеклянные квадраты. Как и в американской версии, стеклоблоки имели не только декоративную функцию, но еще и имели низкую теплопроводность, что позволяло сохранять тепло в помещении. А благодаря своему строению и рифленой поверхности получалось перераспределить световой поток в помещении. Поэтому экономилась электроэнергия и освещалось темное помещение. За стеклоблоками было довольно сложно, что-то разглядеть, поэтому они широко использовались на промышленных предприятиях, складах или лечебных учреждениях.

Стеклоблоки популярны и в наше время, как декор внутри помещения или облицовка оконных блоков. Сейчас можно встретить различные по формам и размерам стеклоблоки, да и цветовые гаммы значительно расширились. Кроме того, стеклянные блоки могут быть: прозрачные, матовые, рифленые и даже с наполнителем в виде различных предметов, что позволяет значительно расширить сферу их применения. Вот так американская задумка переросла в современное декорирование помещений.

Показать полностью 3
5

Ж/д переход. Что это?

Ищу ответ на вопрос. Куда отнести ж/д переход и почему? (см фото. Фото подобное взято отсюда). Все определения взяты из градостроительного кодекса.

  1. Объект капитального строительства - здание, строение, сооружение, объекты, строительство которых не завершено (далее - объекты незавершенного строительства), за исключением некапитальных строений, сооружений и неотделимых улучшений земельного участка (замощение, покрытие и другие).

  2. Линейные объекты - линии электропередачи, линии связи (в том числе линейно-кабельные сооружения), трубопроводы, автомобильные дороги, железнодорожные линии и другие подобные сооружения.

  3. Некапитальные строения, сооружения - строения, сооружения, которые не имеют прочной связи с землей и конструктивные характеристики которых позволяют осуществить их перемещение и (или) демонтаж и последующую сборку без несоразмерного ущерба назначению и без изменения основных характеристик строений, сооружений (в том числе киосков, навесов и других подобных строений, сооружений).

Ж/д переход. Что это?
Отличная работа, все прочитано!