Как нужно строить, учел весь негативный опыт. Беседка в современном стиле своими руками. Проект, чертежи, инструкция
Я наконец-то достроил беседку, остались совсем мелочи, которые будут доделываться еще годами. А в этом материале я расскажу подробно о том, как я её делал, и выложу все чертежи. Вдруг кому-то захочется чего-то подобного.
Фундамент
Я делал беседку на УШП-плите. Сам я с бетоном боялся связываться на тот момент, поэтому заказал фундамент на стороне. Хотя, посмотрев, как это делают, скажу, что ничего сложного тут нет. Просто времени может занять много, если делать это самому.
Геология
Как взрослый строитель, я предварительно заказал инженерно-геологические изыскания для подготовки проекта фундамента. Да, возможно это кому-то покажется лишним для строительства беседки (и мне тоже так кажется). Но я тут решил убить двух зайцев, попросил сделать чуть больше точек, чтобы потом этой геологии хватило и на строительство дома.
В общем, приехали ребята, выкопали несколько скважин, и сделали заключение:
Достаточно благоприятные инженерно-геологические условия участка позволяют применить при строительстве проектируемого сооружения фундаменты различных типов при соответствующем экономическом обосновании. Рекомендуется плитный тип фундамент с глубиной замены грунта 0,5 м и ниже (рекомендуется заменять пучинистые грунты ((суглинки тугопластичные) на песчаные и гравийно-щебенистые) или ленточный тип с глубиной замены грунта на глубину промерзания. При свайном типе фундамента рекомендуются расчет проектировщика.
Если простыми словами - вынимай полметра грунта, и делай плиту.
Проект фундамента
После чего был заказан проект беседки, и фундамента, с учетом рекомендации геологов.


План фундамента
Ну и собственно сам фундамент был готов за 10 дней. Можно было быстрее, но в какой-то момент пошли дожди и рабочие в эти дни отдыхали.
Кратко процесс примерно такой:
Вынимаем трактором пол метра грунта
кладем геотекстиль
засыпаем 20 см песка
здесь же делаем закладные под коммуникации (вода, канализация, электричество)
Еще раз геотекстиль
И засыпаем это добро щебнем. Не забываем каждый слой проходить виброплитой
дальше плантер, ЭППС, пленка
И можно начинать вязать арматуру по схеме и затем лить бетон.
Профит!)



Пошаговый процесс в фото
Вообще, по хорошему, нужно сделать отмостку еще вокруг, чтобы вода не подмывала плиту. Я это буду делать чуть позже, когда пойму куда и как ставить большой дом (для постоянного проживания). За год ничего не произойдет критического, в следующем сделаю.
Каркас
Чтобы начать делать каркас, нужно подождать 2-3 недели, чтобы бетон затвердел до своего проектного состояния.
Нижняя обвязка
Как только бетон затвердеет, можно начинать класть обвязочный брус. Я его клал на рулонную гидроизоляцию, предварительно приклеивал её на битумную мастику к фундаменту.
Брус крепил анкерами. Кстати, прям всячески рекомендую брать вот эти анкера, т.к. перепробовал всякие разные, и вот эти держали лучше всего. Подробней рассказывал у себя в телеге об этом.
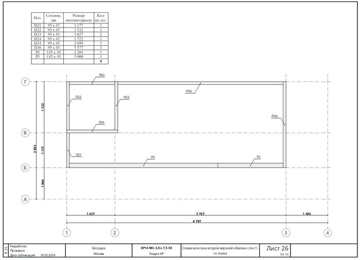
Стены
Стены это самое простое. Собираем их на полу
забиваем по три гвоздя в каждое соединение:
Затем всё лихо поднимаем и фиксируем по уровню. Можно сделать временные подпорки, пока остальные стены не встали
Бонусный лайфах!
Чтобы не мучаться с сабельной пилой при врезке укосин, я делал так. Пока стена лежит на полу, выставлял на ней правилные диагонали. Затем прикладывал доску туда, где должна быть укосина, отмечал на стойках стены метки под выпилы. А дальше циркуляркой в этих местах делал много вырезов на нужную глубину.
Теперь только надо было постучать молоточком и чуть посрезать стамеской остатки.








Схемы стен (листайте)
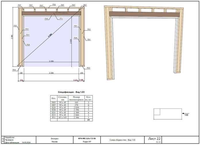
Как только стены собраны, можно ставить лвл-балку
LVL-балка
Балку лучше заказывать заранее. Её изготавливают 2-3 недели, учтите это. Я заказал её, когда поставил крайние столбы, и хорошо. Потому что размер балки пришлось сделать чуть больше (на 3 см), из-за того, что я так и не смог ровно выставить диагонали.
Весит она около 200 кг, поэтому пришлось заказывать манипулятор. Хотя умельцы, я думаю, найдут способ поднять её и без техники, было бы желание.
Нагрузки все заранее расчитаны на этапе проекта. Причем считали эти нагрузки не только архитектор, который делал проект, но и производители этой балки.
Стропильная система
Честно - в моём проекте стропила сделаны так себе, можно было это сделать лучше. Пара минусов:
Не удобно их крепить к обвязке
Не удобно потом класть утеплитель
Но у меня было что было. Я решил не отходить от проекта сильно, поэтому делал по нему.



Схемы стропил
Стропила я крепил на уголки к обвязке:
А уже затем в распор между ними набивал "перемычки".
На этом каркас готов, можно переходить к следующему шагу.
Тёплый контур
Плёнка и вентзазор
Дальше берем ветро-влагозащиту и затягиваем ей весь внешний контур каркаса. На крышу берем поплотнее, на стены можно менее плотный.
Что удобно, производитель заявляет, что в таком виде (без внешней обшивки), эта плёнка может простоять до 30 дней. Как раз будет время зашить всё финально.
С вентазазором я особо не морочился, прибил 4 ряда. Единственное на крыше сделал чуть больше, с 30 см зазором между досками.
Утеплитель
Все стены я утеплял каменной ватой. Очень удобный утеплитель, с точки зрения монтажа, режется приятно, вставляется тоже, не крошится. Единственное, рекомендую купить вот такой нож, резать им намного удобнее, чем канцелярским
Утеплил я им все стены, даже внутреннюю перегородку (хотя и сомневался в этом), но решил, что сделаю на всякий, возможно здесь вместо кладовки сделаю туалет в далеком будущем :)
Крыша
Ах. да. Забыл рассказать про крышу.
На вентзазор я уложил два слоя ОСБ 12мм, второй слой с небольшим смещением, относительно первого. А затем на осб положил гидроизоляцию для плоской кровли.
Прикольный материал, с клейкой стороной. Не нужно даже горелку использовать.. Раскатываешь рулон, снимаешь пленку, и приклеиваешь всё к осб, раскатав валиком. Не забудьте предварительно карнизную планку по краям прибить. А сверху уже гидроизоляцию
Отделка
У меня вся внутренняя отделка это иммитация бруса. Решил делать её горизонтально. Предварительно набил обрешетку вертикально, а за ней протянул кабель электрики. Без металлорукава (да, сомнительное решение, но кабель брал негорящий, плюс перекрестился три раза).
Затем прибивал иммитацию бруса на маленькие финишные гвозди, а в местах розеток и выключателей, делал отверстия:
По итогу вот такая красота:
Нижнюю часть по длинной стене делал из дешевой иммитации бруса, экономил. Т.к. крашенная получилась почти в 3 раза дороже, чем обычная. По итогу пришлось мудрить, чобы состыковать их по другим стенам. Мне кажется, я особо и не выиграл в итоге. Но как есть.
Фасад
На фасаде я по обрешетке забил ОСБ и покрасил в черный. Дальше контробрешетка тоже в черный, и уже на неё крашенный планкен.
Пол
На пол сделали плитку, заказывал на стороне, т.к. не моё это. В целом получилось неплохо:
Окна
Над окнами думал долго, разные варианты перебирал, в итоге остановился на откатных, с минимальным порожком снизу. Ценник, конечно, оставляет желать лучшего, но выглядит красиво.
Финал
Собственно на этом всё.
Было в проекте:
Стало в реальности:
Похоже?) как вам?
У себя в телеграме я рассказываю про загородную жизнь, и про фишки умного дома.
UPD: Там же выложил смету























































