Сообщество - Строительство и ремонт

Строительство и ремонт

10 711 постов 48 328 подписчиков

Популярные теги в сообществе:

358

Как утеплить межэтажные железобетонные перекрытия?

Добрый день.
Подскажите, пожалуйста, как утеплить межэтажные железобетонные перекрытия.
Многоэтажный (10 этажей ) дом с тех этажом. (ТСЖ)
Угловая квартира. В жилом помещении +18 С и влажность 72 %. Температура потолка +16 С. Вентиляция работает. За окном минус10 С. Температура батарей 45 С. Плита между квартирой и тех этажом не утеплена ничем. На тех этаж выходит вентиляция. температура на тех этаже +13С и по ощущениям высокая влажность в помещении по углам небольшой конденсат(капли)
Подскажите, чем утеплить межэтажное перекрытие и нормализовать влажность в квартире?

На фото выход вентиляции.

Как утеплить межэтажные железобетонные перекрытия?
92

Как мы построили бюджетный и стильный дом 84 м2 (проект можно скачать)1

Этой осенью, мы закончили строительство небольшого аккуратненько дома в 2 этажа!  Здесь я постараюсь принести немного пользы, тем кто захочет построить такой дом!


А именно, расскажу что в проекте интересного и выложу проект (все чертежи с конструктивом) чтобы вы могли использовать их для строительства!


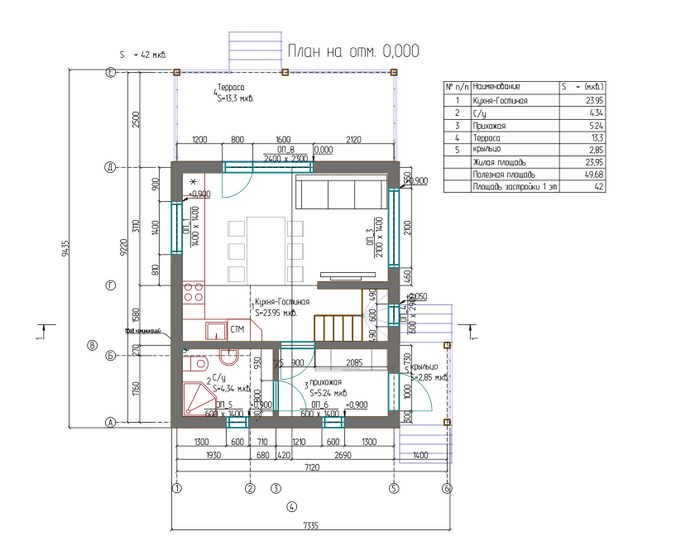
Вот такой домик

84 м2

Два этажа

Построен по каркасной технологии

Отделка сайдингом

У дома просторная терраса


Вот собственно проект для скачивания, в ПДФ: Проект загородного каркасного дома 84 м2 в Иркутске

В Следующем посте обязательно смету выложу


Вот обзор дома:

В доме довольно большое количество комнат. Но надо полагать, что на такую площадь приходятся совсем небольшие комнаты )

На первом этаже компактно расположили крыльцо, террасу. Кухня-гостиная  в 24 м2, и здесь вы можете сказать, что у вас "туалет, гардероб, сан узел" больше, как это делают очень часто, но у всех разные возможности. Кто то в 500 квадратах чувствует себя очень не комфортно, кому и апарты в 21 м2 - зато свое!

К тому же на первом этаже обалденные панорамные окна с выходом на террасу )

Также на первом этаже есть холл под лестницу, тамбур и сан узел.

На втором этаже целых 3!! Три спальни! Гардероб и сан узел! И конечно холл под лестницу! Конечно такое количество объектов планировки в 42 м2 не могли пройти незаметно для площади каждого из них.

Но в итоге у дома: 2 холла, тамбур, 2 сан узла, гардеробная, кухня гостиная, 3 спальни ) Очень уютное и экономное жилье для обеспечения всех потребностей семьи )  И конечно если это рассматривать как второе жилье на природе, то претензий быть вообще не должно)

У дома просторная терраса

Строился дом на болотистой местности. У нас в Иркутске огромные территории Сибири простилаются на сотни км от одного города до другого) Но в самом городе течет несколько рек. Самая большая - Ангара, поменьше - Иркут, вот в его пойме и строился этот домик)


За счет того, что это черта города, место весьма популярно, хоть и на болоте. Называется Селиваниха, если кто то из Иркутска. От того и строился дом на сваях.

Это внешний вид фасада "с другой стороны". И здесь стоит наверное проговорить про отделку фасада. Обычный, но не самый дешевый садинг... Точнее надежный и хороший сайдинг, без большого количества вставок, углов, переходов обойдется вам не так дорого как кажется. Остается вопрос как сделать его более или менее привлекательным?


Самый лучший способ - сделать контраст на элементах: откосы, углы, сафиты - будут симпатичнее смотреться если вы сделаете на светлом сайдинге эти элементы темнее ) 

Домик строился с комплектом сантехники, электрики, чистыми полами. Теплым полом. Отделка финиша - это процесс отдельной истории, да и сейчас еще не выполнен. Но стены подготовлены под поклейку обоев.

Собственно после окончания работы строителей, поклеить обои - это совсем не сложная операция. И самое главное - не ответственная, от неё не упадут стены если накосячишь. По этому если остальные работы выполняли строители, то обои уже будут клеить хозяева.


Сколько все обошлось с разбивкой по этапам и сметой "чтобы скачать" я опубликую в следующем посте )

Как вам домик?


Проект для скачивания:  Проект каркасного дома два этажа с террасой, скачать

Показать полностью 11 1

Частный дом. Липецк

Всем привет! Рассматриваю в ближайшие три года переехать из города в свой дом. Подскажите, как лучше поступить, купить готовый дом без отделки с участком или заключить контракт с строительной фирмой, а участок отдельно? Какие плюсы, минусы? И то, и то планирую в ипотеку (ит ставка).

Почему в заголовке Липецк? Подскажите, кто отсюда, где лучше смотреть/строить? Хотелось бы подальше от нлмк, но не далеко от города. Нужна хорошая школа, сад, асфальт желательно, газ чтобы был.
Смотрел коттеджные посёлки, но где-то дороги нет, где-то газа.

Накидайте ещё идеи планировок, плиз. Одноэтажный, с кухней-гостинной, 3 спальни.

19

Убавляем громкость: как сделать правильную звукоизоляцию квартиры

У соседей слева недавно родился ребенок и у него, кажется, режутся зубки. Те, что наверху разучивают Рахманинова. Справа бабуля смотрит по вечерам новости. А снизу вообще круглосуточный магазин. Свихнуться можно!

Если вы ярко представили себе всю палитру звуков и дребезжаний, вам стоило задуматься о звукоизоляции.


Звукоизоляция, если говорить простыми словами, борется с попаданием шумов в квартиру извне. Ее критерии понятны – не должны быть слышны лишние звуки или чувствоваться вибрации. А как это обеспечить, расскажем ниже.


С каким шумом борется звукоизоляция?


Стоит упомянуть, что различий между шумоизоляцией и звукоизоляцией, по сути, нет. Звук – это волна, а шум – комбинация множества звуков. Практическая физика. Далее мы не будем делать различий между этими двумя терминами.


Звукоизоляция борется с тремя основными видами шумов:


*Ударный шум.


Такой шум возникает, как ясно из названия, от удара о поверхность. Например, сосед сверху роняет на пол тарелку или передвигает рояль. То, что вас беспокоит в этот момент, называется ударным шумом.

*Структурный шум.


Похож на ударный по своей сути, он тоже зачастую распространяется вибрацией. Возникает из-за работы лифта или системы кондиционирования. Структурный шум возникает вдалеке от вас, а ударный прямо за стеной.

*Воздушный шум.


Такой шум передается по воздуху. Это может быть крик ребенка за стеной, веселая компания под окнами, сирена «скорой».

Бороться за свое спокойствие можно по-разному – обить все вокруг войлоком или приложить к каждой стене матрас. Но это вряд ли спасет. В долгосрочной перспективе, еще на этапе ремонта, важно взять во внимание монтаж звукоизоляции. Но и здесь есть нюансы.


Рынок материалов для звукоизоляции огромен – мембраны, звукоизоляционные одеяла, демпферные ленты и звукопоглощающие плиты. Все это может спасти только при условии правильного монтажа.


А еще, что немаловажно, при выборе верной системы установки.

Удачное сочетание даст самую полную из разработанных на сегодняшний день звукоизоляцию в квартире.


Что такое правильная звукоизоляция?


Итак, сразу к делу. Правильная звукоизоляция обязательно включает в себя развязку стен, пола и потолка. Такая система называется «комната в комнате» или «коробка в коробке».

В чем суть.


Материалы обшивки каждого элемента – пола, каждой из стен и потолка – не должны быть жестко связаны с исходными стенами, полом и потолком. Это делается, дабы избежать передачу вибраций от одного компонента другому.


В такой системе существует два метода установки: каркасный и бескаркасный.


*Каркасный способ включает в себя звукоизоляцию пола, обшивку стен и звукоизоляцию потолка.


Стяжка пола укладывается «плавающим» способом. Полусухую смесь заливают на звукоизоляционное одеяло, а его в свою очередь заводят на стены. Так стяжка «плавает» на поверхности материала и не имеет жесткой связи со стенами и плитами перекрытий. В дополнение этому, под одеялом укладывают слой звукоизолирующей мембраны – тяжелого, но гибкого полимерного материала, а под нее еще один слой одеяла. Получается своеобразный шумоизолирующий бутерброд, не передающий вибрации на стены.


Такая система принята в работу на двух наших объектах. Все коммуникации, идущие по полу, были залиты стяжкой. На очереди звукоизоляция потолка.

В каркасном методе она устанавливается следующим образом: звукоизолирующий материал – мембрана или войлок, например, клеится на поверхность потолка, а на него крепятся виброкаркасы – направляющие с вибродемпфирующим (вибропоглощающим) материалом. Они будут держать всю конструкцию, к их «лапкам» крепятся металлические профили, а пространство внутри заполняют звукоизоляционной ватой. Пористость материала не будет пропускать воздушные шумы, а подвес с демпферным участком не даст распространяться шуму по поверхности. После этого на все наполнение укладываются гипсоволокнистые листы или дополнительные слои мембраны. На этом монтаж звукоизоляции потолка окончена.

Остались стены. В целом, различий между обшивками стен и потолков не так много. Все зависит от выбора материалов. Что должно быть обязательно, так это звукоизоляционная прокладка от стены, оклейка демпферной лентой по периметру, подвесы, каркас и обшивка сверху, например, звукоизоляционными плитами.


На этапе обшивки возводимых перегородок важна их установка. На одном из наших объектов сперва идет обшивка стен, а уже после – возведение перегородок и их обшивка звукоизолирующими материалами. Таким образом, перегородки не будут жестко связаны со стенами, а следовательно, не передадут вибрацию и шум.

Так выглядит укладка каркасной системы. Конечно, выбирая такое решение, надо быть готовым к тому, что она займет место – от 68 миллиметров на одной стене.


Однако такая система может спрятать в себе коммуникации потолка, провода и даже коробы под вентиляционные трубы.


Вся эта сложная схема направлена на то, чтобы звук и вибрация от удара был поглощен материалами и не мог передаться, например, от стены потолку или от потолка стенам.

Но есть и другой вариант исполнения звукоизоляции.


*Бескаркасная система выглядит немного иначе. В ней, что неудивительно, отсутствует каркас и всяческие подвесы.


Потолок и стены такой системы укладываются из комбинации различных шумоизолирующих материалов пористой структуры. Это могут быть мембраны, панели из кварцевого песка, гипсовые плиты и слои штукатурки.


Пол в этой системе может быть уже залит стяжкой. Такое может быть, когда в стяжке пола нет необходимости прятать какие-либо коммуникации или трубы, или когда стяжка уже была сделана на момент возникновения идеи звукоизоляции в проекте. В таком случае стяжку покрывают слоем гипсоволокнистых листов и чистовым материалом.

Бескаркасная система щадит пространство и занимает от 40 мм у одной стены.


Здесь стоит отметить, что обычная отделка стен, чем бы то ни было, не является звукоизоляцией. Да, толстые плиты могут сделать звук глуше, но от ударных и структурных шумов никуда не деться.


Звукоизоляцию можно заложить в проект одной комнаты, а не целой квартиры. Например, только спальни. Или личной студии звукозаписи, чтобы не мешать соседям.

Безусловно, звукоизоляция – дело не из дешевых. Один рулон качественной мембраны стоит 18 000 рублей, а хватает ее примерно на 5 кв. м. Хоть оговоримся, что мембрана бывает разной. Также стоит помнить, что это трудоемкий процесс, требующий продуманности всех остальных этапов. Залитый стяжкой пол застынет и скроет под собой все трубы, и если допущена ошибка, его придется разрушать.


Однако непродуманная система звукоизоляции пола, как уже говорилось ранее, может привести к печальным последствиям. Или звукоизоляционная коробка не будет замкнута, или стяжку необходимо будет разбирать и весь ремонт затянется надолго.


Так и во всей остальной системе. Без правильного подхода к делу, все траты на звукоизоляцию пойдут по ветру.


Задуматься о звукоизоляции жилища стоит до начала работ, прикинуть бюджет и возможности, найти информацию и, конечно, обратиться к профессионалам.


А насколько тихо в вашей квартире? Задумывались ли вы о звукоизоляции? Напишите в комментариях.

Показать полностью 10
45

Ремонт фундаментов. Замена столбов на винтовые сваи. Балкончики

В одной из тем ранее, я упоминал о том, что столбчатые фундаменты установленные на проблемном грунте имеют тенденцию к саморазрушению. Происходит неравномерная просадка подошвы столба и в результате - смещение верхней части. Иногда эти смещения ведут к потере устойчивости дома. Сами конструкции каркасного дома или сруба обычно не страдают. Дом просто садится одной стороной или углом на грунт и нижняя обвязка каркаса или нижний венец сруба активно набирает воду, гниет и быстро разрушается. Лечится это на всех стадиях. По периметру дома с отступом 25-30 см завинчиваются сваи, дом вывешивается, под него заводится брус или швеллер, который опирается на сваи, дом опускается на этот новый фундамент. Картинка 1.

Торчащие из под дома элементы закрываются доской - "аля завалинка".

В последнее время из-за дороговизны швеллера и древесины, я разработал метод "балкончики". Применяю для относительно легких домов.-картинка 2

суть метода - включение в работу балок обвязки, как по периметру так и внутренних, половых, при условии их целостности. Швеллер используется не целиком а по 50-60-70 см. Допустим черметный. Длинные куски там редкость. От смещения внутрь работает глухарь или 2 закрученые в балки дома. Дерево хорошо работает на осевое сжатие вдоль волокон. Пусть работает. Это дает экономию швеллера 3-5 м на пару свай - это от 3 до 8 тр на пару. Обычно на средний домик используется 10-14 свай. Те-от 15 до 56 тр экономии.

Картинка 3. Вверху традиционный метод, внизу мой.  Зеленым балка.

Кино про применение метода "балкончики"под названием "За секунду до катастрофы". Домик еще держался, буквально, "на честном слове". Снял на камеру Сони ХД Гандикам, монтировал в Сони Вегас, закадровый голос мой. Сейчас метод немного изменен. Балкончики варю отдельно и потом просто одеваю на сваи и проворачиваю под дом. Меньшая пожароопасность, удобнее работать, лучше все проваривается, можно варить и покрасить в мастерской, а на месте только установить - сокращается время командировки. Практически одни плюсы. 

При подъеме дома по периметру он лишается внутренних опор половых балок, если они на тот момент функционировали. Появляется "батут". Чтобы его устранить, приходится разбирать часть пола рядом с внутренними балками и устанавливать сваю с балкончиком там. Моя маленькая установочка это позволяет.Потом все обратно собирается.

ПС. Балкончики надо применять осторожно. Ремонтируем легкие домики. Фото 4.Каркасно-щитовые и небольшие срубы.  Тяжелые дома лечатся по-другому. Об этом в следующих постах.

Показать полностью 4 1
34

Нужен совет по ПВХ окнам

Купил квартиру в новостройке. Теперь воюю с застройщиком.
Черновая отделка. Под одним из окон образовались снежные сугробчики. На замечания застройщик ответил, что так и должно быть, ведь у меня батареи в заводской упаковке (пленка)… и по этому тепло от них провоцирует образования снега.
Знающие люди подскажите так ли это ?

Показать полностью 3
65

Мифы про фундаменты

Миф 1. Бывают хорошие надежные фундамент и бывают плохие. Вот например таблетки бывают плохие? Нет таблетки назначают от конкретного заболевания. Если у соседа болела нога и ему назначен Неболиногин - не факт что вам тоже подойдет. Также с фундаментами. Они должны быть рассчитаны для конкретных грунтовых условий под конкретную конструкцию дома. Недавно увидел слово порно-столбчатый. Опорно-столбчатый фундамент -столбики из блоков или кирпичиков.  Опасная вещь. Дешевая, простая в изготовлении чем и подкупила большинство дачников в 70-е 90-е годы. Сейчас дает мне хлеб. Ремонтирую такие фундаменты, в основном заменяю на винтовые сваи, бывает когда причина в на одном-двух столбах-просто перебираю.  Где встречались проблемы с такими фундаментами? На глинистом грунте с недодуманым водоотведением. Тупо из водопроводной трубы хлещет под один из столбов. Под столбом практически плывун. Раньше стояла бочка для полива. Дачку забросили- бочка переполнилась или украли, вода пошла под столб. На бывших болотах, отданных под садоводства дачникам в 80-х вообще сплошь. Один домик поднимешь - зовут к соседям. Но кстати, свои 20-30 лет такие столбики обычно простаивают. С проблемами конечно. Дверь не прикрывается, стекло в окне треснуло за зиму. Но дачный народ с этим мирился. Много таких фундаментов в деревнях. Раньше там вообще ставили на валуны по углам и под пересечениями стен и стояли дома. Достали эти валуны когда при ремонте или пристройке веранды надо винтовую сваю в это место закрутить, а там валун килограмм на 300. Деревни строились на подходящих местах. В болото и низину не лезли. На пригорочке, сухенько, комаров поменьше. Опять таки строили срубы, а срубу все пофиг. Ремонтировал дом 36-37 года постройки (газеты под обоями с проклятиями троцкистам), в Химках, на берегу канала им. Москвы. На склоне, На глине. Весь скосоебился в сторону уклона. Верхний венец -отклонение по вертикали от нижнего 20-30 см. Стоит на опорных столбиках сложенных из красного кирпича БЕЗ РАСТВОРА. Совсем. По периметру между столбиками стеночки из того же кирпича. Песком обсыпано вокруг. Песок вокруг дома за счет уклона дренируется. И стоит себе. Конечно маленько сполз по склону. Столбы, что ниже по склону просели. А в подполье было сухо. Разбирали печь-обратил внимание, что был сделан подсос воздуха из подпола. За счет подсоса вентилировалось подполье. Клад смотрели- но не было. Бутылки винтажные были, не принимали в стеклотару раритеты.

Резюмирую. Опорно столбчатый фундамент приемлем при условии защиты грунта под домом от верхневодки, на участках с УГВ больше 3 м. Водосток с крыши надо грамотно уводить от фундамента. Ну и под газосиликат конечно не надо.

Показать полностью 5
Отличная работа, все прочитано!