Прошу конструктивной критики1
Нарисовал эскиз эскиза планировки планируемого дома, прошу указать, где я накосячил (ну, кроме того, что бельё негде сушить и я не нарисовал окно в санузле второго этажа) ). Конструкционные элементы, инженерные системы и применимые общестроительные решения будут прорабатываться позже с соответствующими специалистами. Т.е. пока речь идёт о эргономике планировки в первую очередь.
Максимальное пятно застройки ~18x15м (участок здоровый, но весь в красных линиях), пятно застройки планирую около 10*10 (нужно будет учесть кратность размера материала и чтоб всё более-менее влезло), живём с женой вдвоём, есть кот-крысолов, планируем ребёнка, бывают большие компании в гостях. На данный момент оба удалёнщики, предпосылок к выходу в на территорию работодателей в режим полной пятидневки не просматривается.
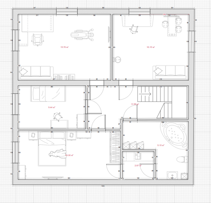
Первый этаж:
Второй этаж:
Заметки на полях:
Веранда будет, но будет с основного выхода. Причина от чего не делать веранду с выходом из гостинной: зимой всё равно придётся одеваться, чтоб выйти, делать отдельно "летнюю" и "зимнюю" веранду не считаю целесообразным.
Ширину ступени в 80см считаю достаточной.
Это 2 полноценных этажа с холодным(?) чердаком (возможно, там будет часть инженерных систем). Кстати - кто как думает, лаз на чердак лучше делать из дома (тогда придётся делать разрыв теплоизоляции перекрытия) или снаружи (через гипертрофированное слуховое окно)? С тех пор как я переутеплил чердачное перекрытие в моём нынешнем доме - бываю на чердаке раз 5 в год.
Про чердак - там-же будет храниться всякое, например новогодние украшения летом и туристический инвентарь зимой и прочее "использовать некуда, выкинуть жалко".
Спальни и кабинеты могут поменяться местами.
Спальня первого этажа существует чтоб в старости не нужно было подниматься наверх. Т.е. на пенсии второй этаж может быть вообще законсервирован.
На отдельную постирочную места, как вы видите, нет. Теплогенераторная - она-же средоточение мокрых инженерных систем может быть моловата (отопление планируется тт котлом а это угольная пыль и сажа - не лучшее место для стирки, гвс - проточником на электричестве или на баллоном газу).
Второй свет, панорамные окна, балконы и прочая замануха в стиле "типа в доме, но на природе" красиво смотрится только на рендерах. Если нужен свет или свежий воздух - открыл дверь и вышел с ноутом на веранду работать, или без ноута на прогулку или по ягоды-грибы в лес.
Не модное сейчас отделение кухни от гостинной-столовой имеет три причины: 1 я человек - огонь, раз в пару лет жгу кухню. 2 - когда я жарю что-то соседи вызывают пожарных, дым и пар валит из всех щелей. 3 - возможность изолировать ножи и очень горячие поверхности от планируемого ребёнка.
Дом - максимально квадратный (соотношение доступной площади к площади стен выходит хорошим). Крыша - максимально простая двускатная. Каждое примыкание, изгиб, сочленение в кровле - это место для ошибки при строительстве и протечке в будущем.
Плюсуйте, минусите, критикуйте, поддерживайте, используйте как основу для своего эскиза. Ю'р велком, как говорится.
















