Сообщество - Строительство и ремонт

Строительство и ремонт

10 710 постов 48 328 подписчиков

Популярные теги в сообществе:

2

Какие инструменты нужны для соблюдения смыкания дверцы?

Имеется старый советский шифоньер ,где широкая дверь и узкая со стёклышком - у всех такой ,полагаю был. Близкие его захламили. Фотографии нет т.к я сейчас не на месте, петли черные были приобретены, так вот , каким образом перемонтировать старую петлю которое вырвало ,чтобы дверь закрылась ровно. нужно ли что-то чертить , использовать угольник. Т .к сверла минимальные есть, шуруп также,а вот нужно ли размечать , пользоваться уровнем - не понятно ,как соблюсти то,чтобы дверь после присверливания не закрывалась со скосом

2

Работа над ошибками

Третьего дня написал я пост Несколько вопросов по моему проекту самостроя (9м x 7м) в котором пожаловался на проблему с возведением крыши для моего проекта. В процессе обсуждений сопесочники дали просто огромное количество советов, за что я очень благодарен каждому отписавшемуся. Чего только не предлагалось - и фермы и различные четырёхскатные варианты и так далее, но подумав и воспользовавшись советом @Ykcyccola я решил: собственно глупо создать самому проблему на бумаге, а потом героически её решать перенося "героизм" в реальную стройку, ведь можно просто переделать проект с нуля. Я бы изначально так поступил, не став выносить на обсуждение, но перелопатив "эти ваши интернеты", я так и не смог найти вариант с несущей стеной вдоль здания, в то время как он оказывается есть, да ещё и под мои размеры. Правда в конечном итоге пришлось чуточку исправить внешние размеры и дом теперь планируется не 9 на 7, а 9 на 7,3 в противном случае всё становилось совсем уж узким.

Кроме того, на всеобщее обсуждение так же хочется вынести кроме самого нового решения, ещё и "гениальную" как мне показалось идею, с выносом армопояса на чердак, дабы убрать туда вместе с ним и точку росы. А так же был бы рад получить оценку реализации большого (1,8м) проёма в несущей стене между коридорчиком и кухней (объект площадью 15кв.м называть кухней-гостиной язык не поворачивается).

В общем от общих слов к конкретике.

Вот общий вид:

Над верхним рядом изображённом на картинке будет идти армопояс, на нём по длинным сторонам мауэрлат (виден на старом проекте), напоминаю что фронтоны из блоков.

Лаги чердачного (холодного) помещения планируются с использованием доски 40x150x6000 (обёрнутые на стыках рубероидом, ну и конечно пропитанные по всей длине против грибка и огня), утапливаться в стены будут с шагом 59см, дырки в блоках по ширине 5см, по глубине 10см, высота 14,5см. (блок внутри D300 300x250x600, а внешний D400, 400x250x600)

По итогу внутренний блок примет вот такой вид:

Собственно вопрос - используя инструменты по типу сабельной электропилы, а так же дрели (перфоратор) с перьевым сверлом, возможно прикуплю реноватор, я подобное смогу реализовать без порчи кучи блоков? Или может не выёбываться, а просто насквозь прохерачить это отверстие? Мне длины лагов хватит их в стык поставить, один хрен 6м резать на куски 3,3м, а оставшееся потом куда-нить использовать, например на крыльцо.

Вид поближе:

Понятно что придётся где-то с размерами блоков поиграться, но я думаю удастся избежать попадания дырок в края или на стыки. Кстати говоря, ещё вопрос: сколько правильно отступать от внешней стены для первой лаги? Смотрю всякие ролики - там народ впритык ставит... И ещё такой момент - например в середине между лагами всандаливать поперёк доску, чтобы они по ширине друг от друга не гуляли или не надо?

В общем потом будут бруски для конька по всей длине по центру вдоль, которые будут опираться на несущую посредством вертикальных упоров, которые в свою очередб будут упираться на несущую по центру (с каким шагом я ХЗ, хотелось бы избежать упора вот сюда:

Это перекрытие планирую сделать оперев его внизу на металлические уголки, а сверху вложив в выпиленные отверстия по типу стандартного армирования арматурой восьмёркой, только ещё согну скобой вовнутрь. Будет достаточно? Как думаете? И не излишний ли блок справа?

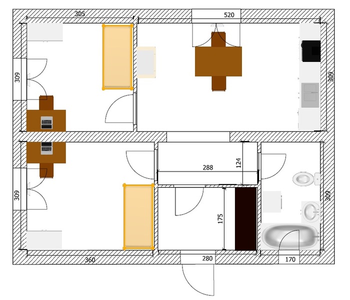
Ну и просто как бонус, чтобы не пилить посты, вот так примерно будет выглядеть само помещение, забыл упомянуть @Papa.Kar1o который посоветовал использовать современную печку для экономии на отоплении электричеством, она на схеме слева от кухонного стола). Тут размеры помещений (там где 309 на самом деле 310, а 124 это 125).

Показать полностью 5
95

Тепло

За эту зиму перепробовал в квартире все виды обогревателей, что есть в продаже. Так как в снимаемой в этом году квартире одна стена наружная, а другая подъездная, то жопка всё время хотела покрыться инеем, а ...не важно, дед мороз всё же не получился.

Первым был такой:

Нагревает не очень, по моему больше создаёт духоту и работает постоянно, а это шум, ночью не комфортно.

Следующий был

В гараж или сарай пойдет, фигня полная.

Что ж потратимся на более дорогое

Долго, очень долго раскочегаривается, слабо греет, главный плюс можно встать, что б он оказался между ног и наслаждаться теплом.

Что ж, мааам, дай денег!

Да, хороший, главное, секций побольше, вторая батарея прям, но жрет как те все три, судя по датчикам умной розетки

Отменяем икру на новый год

Вот такая хрень с пластинами, микатермический обогреватель.

Он победил всех, если вам важно, то мне сейчас тепло.

Показать полностью 5
18

Лёд на утеплителе

Двухэтажный дом первый этаж брус 150х150 второй этаж каркасный.
Пирог стены 2 этажа - пароизоляция, три слоя утеплителя, пароизоляция.
Дальше пространство между стеной и крышей, снизу софиты перфорированные.

Лёд на утеплителе

Со стороны улицы под пароизоляцией весь утеплитель покрыт тоненькой слоем льда.
Подскажите, пожалуйста, почему так получилось и что мне теперь делать.
Пока оторвал всю пароизоляцию вместе со льдом. Стало теплее на улице и лёд тает. Как бы балки не промокли.

Показать полностью 1
31

Ответ на пост «Посоветуйте обогреватель на зиму»1

Вот ради интереса сгруппировал статистику. Каркасный дом 6*9м с мансардным этажом в подмосковье. Все на электричестве, кроме плиты. В столбцах потребление электроэнергии в кВт/ч по годам и месяцам. Пока больше 10к рублей в самый холодный январь даже не выходило. Тариф день 6,16р, ночь 2,43р. За 2023г за электричество оплатил 69299руб. Если прикинуть по летним месяцам, то на отопление ушло за год порядка 40 тыр.

upd. соответственно подключение газа у меня будет окупаться порядка 20 лет.

Ответ на пост «Посоветуйте обогреватель на зиму»
26

Утепление дома для чайников

Уважаемые пикабутяне! У меня есть вопросы по утеплению частного дома в средней полосе нашей необъятной.
Имеем: дом из сруба 6х6, две пристройки 3х6 в каркасной технологии и второй этаж. Фото дома ниже.

Очень много вариантов утеплителей, минвата, эковата, ппу, пеноплекс, куча других штук, везде есть плюсы и минусы. Что бы вы посоветовали? Планируем подвести газ и в дальнейшем перебраться в дом на пмж.

Показать полностью 2
123

Базовые ошибки ремонта

Еще больше интересного и полезного контента про стройку, технадзор и приемку недвижимости Вы можете посмотреть на моем канале

75

Когда надо продать то, что никому не надо! Советские обои!

Доброго времени суток уважаемы господа!

Намедни проводя ревизию чердачного помещения одного из довоенных строений наткнулся таки на огромное количество советских рулонных материалов с орнаментом размерами 0.6 х10 м
и решил их продать на Авито!

Поскольку товар специфический и нахрен никому не нужный то придумал следующее описание:

Обои СССР как средство достижения цели!

Когда надо продать то, что никому не надо! Советские обои!

У вас есть уникальный шанс воссоздать атмосферу позднего СССР в своей квартире при помощи великолепных обоев.
Используйте обои при ремонте в своей квартире! - шокируйте друзей атмосферой сериала "слово пацана".

Хотите что бы ваш офис выглядел презентабельно и чтобы любой человек понимал что ваша компания давно и успешно работает! Правильно! Поклейте советские обои! И каждый входящий поймет, что вы здесь находитесь давно и Вам точно можно доверять!

Хотите наладить отношения с тёщей или свекровью, познакомить любимую или любимого с родителями? Приведите её (их)к себе в квартиру, где поклеены советские обои и незаметно подливайте ей (им)водку в чай. Именно в атмосфере СССР они вспомнят молодость и всё пройдёт как по маслу! И это всё благодаря советским обоям!!

Хотите превратить своё кафе в рюмочную! Ничего не может быть проще!!! Поклейте советские обои и сделайте акцию "стопарик за 50 рублей" и множество уважаемых господ в одночасье заполонит ваше заведение.у Вас будет царить атмосфера доброты и радости! И это опять же всё благодаря советским обоям!!!

Есть специальное предложение для застройщиков! При покупке всего объема вы получаете скидку в 10 рублей за рулон! Чайный гриб и пророщенный лук для монтажа на подоконник.

Спешите ! Предложение ограниченно!
Ведь каждый час поступают заказы с разных уголков нашей планеты и продается один рулон обоев.

Даже тибетские монахи прониклись философией СССР и используют обои с золотым тиснением как на фото номер 2
В качестве свитков для своих священных писаний.

Ссылку на само объявление выложу здесь тоже смеха ради.

Пы.сы. пост не реклама а создан ради того чтобы поржать. Ссылка как доказательство, что не выдумки. Автор не имеет умыла кого то оскорбить или обидеть.

Как вы думаете, получилась достойная презентация товара?))

Показать полностью 1
Отличная работа, все прочитано!