Сообщество - Строительство и ремонт

Строительство и ремонт

10 710 постов 48 328 подписчиков

Популярные теги в сообществе:

0

Здание кадетского корпуса СК

С конца 90-ых годов на одной из улиц Петергофа существовал военный госпиталь. Уже тогда корпуса находились в плачевном состоянии. Со временем он превратился в заброшку.

Но относительно недавно было принято решение построить кадетский корпус СК. Он должен был выглядеть так:

https://www.fontanka.ru/2023/04/03/72187583/?shareRecordImag...

Строительство началось в прошлом году.

Сейчас есть такое:

Что-то пошло не так?

С большим интересом хотелось бы узнать мнение знатоков.

https://kanoner.com/2022/08/08/171731/

https://spbdnevnik.ru/news/2023-02-13/novyy-kadetskiy-korpus...

Показать полностью 2
34

Навес под машину 6х6х3,5м (есть идеи чем заменить поликарбонат)?

Навес из квадратных труб, чёрный металл, на болтовых соединениях. Покрытие кровли - поликарбонат.

Расчеты нагрузок

Стойки - 150х5мм - коэф. использования - 0,73. Если 150*4, то к.0,97.

Прогоны с шагом 700мм 60х40х4мм - 0,77. Пояса ферм 120х80х4 - к.0,5.

Обрешетка ферм - 80х4мм - к.0,72.

Примечание: Можно уменьшить толщину профиля или толщину оставить, но уменьшить сам профиль...

Картинки проекта

А кому интересно, там вдалеке на картинке, стоит гараж, сделали проект его, я уже писал ранее: Гараж 6х8х4м зеленого цвета, односкатная кровля, утепленный

Второй вариант навеса

С балками вместо ферм: сечением 160х140х5мм - к.0,94

Оптимизировали сечения.
Ферма: Стойки - 150х4 - коэф. использования - 0,82.
Прогоны с шагом 700мм 60х40х4 - 0,77.
Пояса ферм 120х80х4 - 0,74. Обрешётка ферм и связи - 40х4 - 0,67.

Комментарий:

P.S. Еще в разработке идея убрать фермы, заменить их на прямоугольную трубу - балку, еще рисуем и считаем нагрузки, позднее планиру выложить что получится, при этом тоже сделать болтовое соединение и поставлять такие комплекты навесов по всей России, как мужской конструктор (как стол IKEA), а сейчас надо сделать расчеты и проект всех узлов и расчета металлоемкости в процессе..

Примеры других, моих объектов:

Магазин 5 Пятёрочка 1440 м2

Коровник на 100 голов (КРС)

Монтаж каркаса здания на химанкера

Обшил металлосайдингом ворота

Как правильно подобрать лестницу

Из какого материала строить дом?

__________________________

Если формат подачи информации интересен, поддержите пост, подпишитесь, будет много интересного!

- Монтаж химических анкеров для здания СКЛАДА 24х40х9,6м

- Сколько стоит комплект каркаса склада 24х40х9,5м + сэндвич-панели?

__________________________

ВК | Инста | Fb | Ок | YouT | Мой сайт

© Анатоль Иванов — заметки строителя

Показать полностью 10
225

Дверь в лето

Дверь в лето

Акриловый лак, колеры, водоэмульсионка.

Упд: когда я рисовал другу эту картину на стене, у него не было рыжего кота. Но очень скоро появился.

На снимке линии немного искажены, но перспективу, в которой изображена дверь, я рисовал не на глаз, а рассчитал графически в двух проекциях)

Показать полностью 1
50

Теплый балкон1

Разбавлю ленту новостей небольшой работой, захотелось увеличить полезную площадь.

Были алюминиевые рамы, холодные.

Пробовал перфоратор, но это ананизм ещё тот.

Мусора получилось примерно 30 мешков.

Доламывал проход.

Кинул старый линолеум.

Чутка заштукатурил.

Половину сделал, Пеноплекс закончился. Брал 5рку потолок, пол. Фасад 5+4. Теплый инфракрасный пол на 6 квадратов планирую..

А вечером пивасик залетает на ура.

И по классике , всем добра :)

Показать полностью 17 1
15

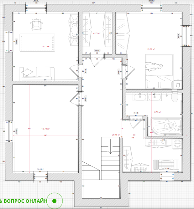
Обсуждение проекта дома (планировка)

Планирую заказать проект дома, хотелось бы узнать мнение профи и не только о данной планировке: плюсы, минусы, что лишнее или чего нехватает.

Показать полностью 2
17

Прошу совета по проводке

Доброго времени суток! Решил провести новую проводку в квартире. Но, так как в электрике не соображаю, прошу совета. Начертил, как мог схему. Хотелось бы выяснить какие УЗО поставить на варочную панель, духовой шкаф, водонагреватель на розетки стиралки и сушилки. На плиту и духову силу тока не знаю. Ну общий автомат на сколько ампер ставить? Надо ли на общий автомат УЗО?

Прошу совета по проводке
799

Продолжаю строить дом в одни руки. Сезон 2023. Часть 4. Фасадная часть. Отмостка

Всем доброго дня!

Прошел месяц с последнего поста, за это время сделано очень много, хотя время конечно не хватает. Все работы веду вечером с 18 до 22 и все выходные с перерывом на поездки на мото и т.п.

Предыдущий пост можно почитать тут: Часть3.

Итак по порядку. Начал как всегда с утепления стен. Применялся комбинированный вид утеплителя. Там где армопояса проходят я монтировал эппс, на остальной части остатки белтермо.

Большое внимание уделил зоне мауэрлата, все очень хорошо запенил и дополнительно утеплил эппс.

Так как для обшивки буду применять планкен прямой, то будут щели. Поэтому монтирую гидро-ветрозащитную мембрану (обязательно диффузионную).

Обрамление окон выполнил из того же планкена покрашенного в черный цвет м герметизацией стыков к раме.

В принципе все готово для монтирования планкена. Планкен был заранее куплен и на этапе утепления по вечерам супруга красила его заранее. Так как на покрасу нужно было почти 3 суток (1 слой праймер + 2 слоя пропитка), а красили по 10 палок 6м.

Вот так я решил посмотреть что как получается по размерам между окон. В принципе я отделался малой кровью. Это 2 подпила с одной стороны окна.

Левую часть сделал за 2 дня (вечера). Номер 19 мечтал установить еще в том году, поэтому приделал сразу как стало куда)))

Перед монтажом планкена сделал дырки 120мм в каждой комнате для монтажа приточной вентиляции, так как в доме планируется приточно-вытяжная система автоматическая в зависимости от уровня углекислого газа в комнатах.

Вот так это выглядит изнутри. Далее труба утепляется и после чистовой отделки установится система притока.

Ну собственно и вторая сторона.

Для уменьшения пыли был куплен пылесос, кстати очень вовремя и мне понравилось с ним работать, тем более за 5к.

Софиты отделал также планкеном, но черного цвета.

Как вы можете заметить есть поперечины на окнах второго этажа, но в последствии я их снял, так как они не понравились никому)

Вот такой конечный вид дома. В живую смотрится очень стильно, современно, но главное для меня очень дешево по деньгам. Деревянная часть фасада обошлась примерно в 50к одна сторона (планкен елка АВ + 1 слой праймер + 2 слоя пропитка финская)

Подсветка будет 12v, управляться алисой. В этот раз светильники заводские по 800 руб под цоколь gu10 и 220, но gu 10 нет 12v лампочек, поэтому купил переходник на gu 5.3 и сами лампочки по 12v, вот такой лайфак!

Для формирования окончательного вида отмостки купил плитки бетонные типо черного цвета, но так как они по факту серые, то покрасил из баллончика черной матовой краской.

Далее засыпал кремневой щебеночкой.

Также понизу установил водосток, который кстати отлично работает в дождь и отводит 80% воды.

Это окончательный вид крыльца, правда осталось подшить потолок у него.

В предыдущем посте встретил много замечаний на счет разных не ровных деталей и т.п. Да согласен, по мелочам я не заморачиваюсь, так как просто нет времени на все это. Задача просто сделать как могу и как нравится близким, а так совершенству нет границ.

На этапе крыши дом был зарегистрирован и получена Московская прописка, вот это знакомое событие для нас. Когда-то мы полностью отказались от ипотеки и пошли по пути участка и стройки. По факту получается значительно дешевле. Пока на строительство потрачено около 2м.

Показать полностью 19

Нужно мнение экспертов...

Эксперты, что вы скажите по поводу данного ролика?
так же хотелось узнать мнение у самого @Aziborov, получить ответ на замечания, а так же экспертное мнение по разводке электричества.

Отличная работа, все прочитано!