Проект одноэтажного кирпичного дома площадью 102кв.м3
Бесплатный вариант рабочего проекта можете скачать с яндекс диска по ссылке
Примерная стоимость строительства
Стоимость строительства в черновом варианте - 3.1млн.р.
Стоимость строительства в предчистовом варианте - 3.8млн.р.
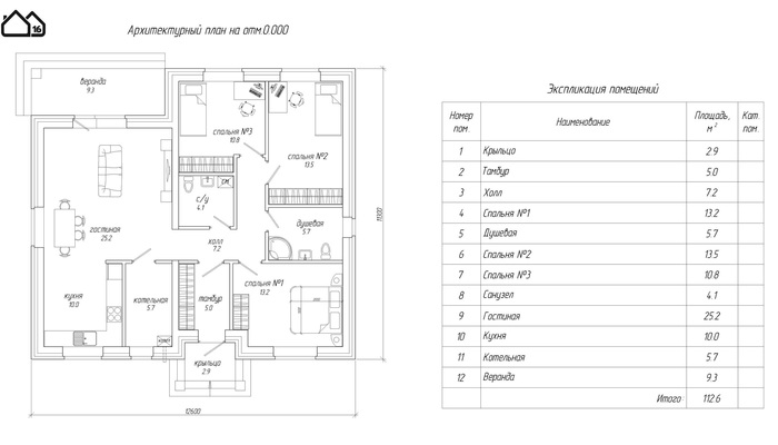
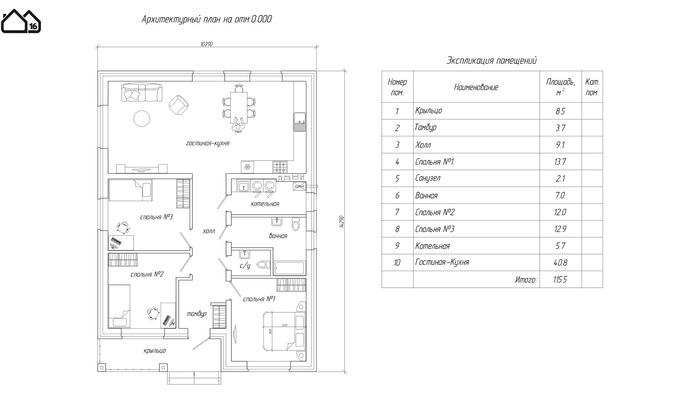
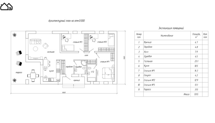
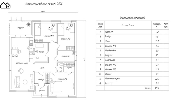
Архитектурное решение
Фасад дома выполнен керамическим лицевым кирпичом 1.4НФ. Входная группа дома включает крыльцо под навесом на двух кирпичных столбах и просторную прихожую на 4,8кв.м. При прихожей слева находится гардеробная, а справа - гостевая спальня или как вариант рабочий кабинет. В доме так же расположились еще две спальных комнаты, одна ванная, помещение котельной, совмещенные гостиная и кухня. Из гостиной можно предусмотреть выход на приусадебный участок через витражные окна. Планировка предусматривает зонирование спальных комнат, при этом в проеме между гостиной и холлом возможно предусмотреть откатные двери для полного разделения индивидуальной и коллективной зон.
Конструктивное решение
Фундамент дома - железобетонный монолитный ленточный на коротких сваях. Стены дома выполнены по трехслойной системе с наружным слоем из керамического лицевого кирпича 1.4НФ, слоем теплоизоляции толщиной 150мм из панелей каменной ваты, внутренним слоем из керамического пустотелого кирпича 2.1НФ толщиной 250мм. Общая толщина наружной стены - 540мм. Полы выполнены по железобетонным сборным плитам перекрытия. Чердачное перекрытие - по деревянным балкам. Крыша - металлочерепица по деревянной стропильной системе.




























