На строительстве двухэтажного дома по аналогии с проектом ПМ2-139
Стоимость строительства в черновом варианте - 4.17млн.р.
Стоимость строительства в предчистовом варианте - 5.14млн.р.
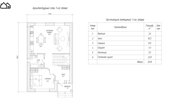
Архитектурное решение Фасад дома выполнен керамическим лицевым кирпичом, а выразительности дому придает балкон над крыльцом. О планировочном решении. На первом этаже дома располагаются по входу через крыльцо - холл или передняя, здесь также расположилась лестница на второй этаж, а слева находятся санузел и спальня первого этажа. Прямо через холл можно попасть в гостиную-кухню. Гостиная и кухня совмещены и имеют общую площадь 32кв.м. Здесь через витражное окно предусмотрен выход на приусадебный участок, где может быть организована веранда. По лестнице переходим на второй этаж. Здесь располагаются 3 спальных, санузел и балкон. Конструктивное решение
Фундамент дома - железобетонный монолитный ленточный на сваях. Стены дома выполнены по трехслойной системе с наружным слоем из керамического лицевого кирпича 1НФ, слоем теплоизоляции из минваты / пенополистирола, внутренним слоем из пустотелого керамического кирпича 2.1НФ. Полы первого и второго этажей выполнены по железобетонным плитам. Чердачное перекрытие - по деревянным балкам. Крыша - металлочерепица по деревянной стропильной системе














