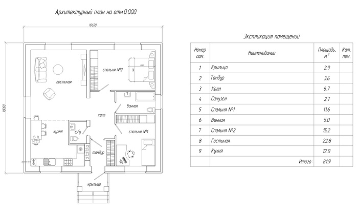
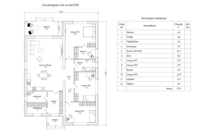
Эскизный проект одноэтажного кирпичного дома площадью 81кв.м
Архитектурное решение
Фасад дома выполнен керамическим лицевым кирпичом 1НФ красного цвета с обрамлением проемов кирпичом бежевого цвета.
Входная группа дома включает застекленное холодное крыльцо под общей крышей дома и просторный тамбур-прихожую на 5,5кв.м. В доме расположились две спальных комнаты, одна ванная, помещение котельной, раздельные гостиная и кухня и небольшой рабочий кабинет. Из гостиной предусмотрен выход на приусадебный участок с торца дома
Далее смотрите фасады дома












































