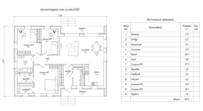
Проект одноэтажного 3-комнатного жилого дома площадью 133.2кв.м. с плоской кровлей
Доброго времени года! Это ПМ16 и сегодня вашему вниманию вариант планировки одноэтажного дома с плоской кровлей
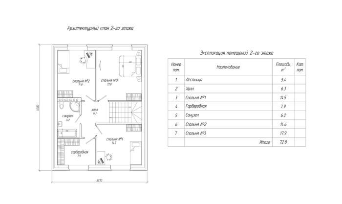
В планировке дома применен принцип функционального зонирования. Спальные комнаты сгруппированы и находятся в левом крыле дома. В спальне №1 выделены гардеробная и душевая комнаты. При холле индивидуальной зоны также находится санузел.
Коллективная зона включает в себя входную группу и общую комнату (смежные гостиную и кухню). Входная группа объединяет крыльцо и тамбур - прихожую со строенным шкафом-купе. Из гостиной предусмотрен выход на террасу через витражное окно. Функциональная связь между зонами осуществляется через холл. Крыльцо дома и терраса утоплены в тело дома и находятся под общей крышей.
Подписывайтесь на нашу группу, чтобы не пропустить новые планировки!









































