Да че там эту квартиру ремонтировать... Цена на стены ч.4
Большая часть новостроек сдаются в состоянии бетонного квадрата/прямоугольника и выглядят примерно так:
Следовательно, перед тем как заехать в свою новую квартиру, нужно пройти веселый (нет) квест по ремонту квартиры, первым этапом которого будет возведение межкомнатных перегородок.
В первых трех частях я расписывал стоимость различных материалов для возведения стен в рамках полного ремонта условной квартиры и этим постом хотелось бы обобщить всю информацию.
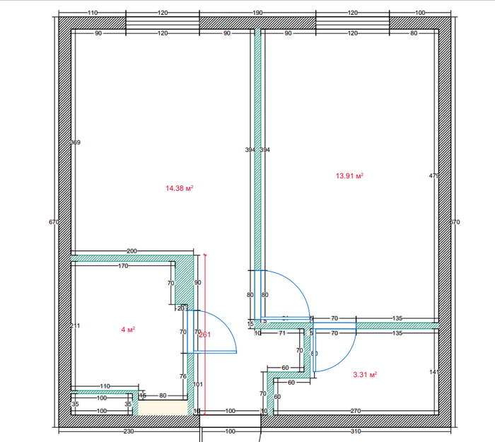
Та самая условная квартира, в рамках которой производится расчет:
Вводные данные квартиры:
Расположение: между МКАД и ТТК.
Общая площадь: 37.79.
Высота потолков: 3,0 м.
Стоимость квартиры: 15.000.000 (396.000 за кв.м.)
Отделка: без отделки.
Площадь возводимых перегородок: 40,3 кв.м.
Я не люблю оперировать оценочными понятиями вроде "хорошо/плохо", "правильно/неправильно", "дорого/дёшево", поскольку рынок ремонтно-отделочных услуг очень многообразен и нет какого-то единого, универсального стандарта подходящего всем заказчикам. Кому-то важна скорость выполнения работ, а кому-то надежность конструкции. Одни поставят во главу угла параметры стоимости, другие же будут отталкиваться от параметра звукоизоляции. И рынок готов предложить решение каждому. Задача мастера в таком разрезе состоит в том, что бы выявить потребность заказчика и предложить ему оптимальное решение. Ну а теперь...
Из чего построить стены?
Пазогребневые плиты.
Общий вид стены из ПГП.
Перегородка из ПГП обладает следующими характеристиками:
Преимущества ПГП:
Самая высокая скорость возведения перегородок, по сравнению с газобетонном и ГКЛ.
Не нуждается в последующей штукатурке, что позволит сэкономить как на материале, так и на оплате работ.
Недостатки ПГП:
ПГП состоит из гипса, который является довольно-таки хрупким материалом.
ПГП не подходит для последующей высококачественной отделки. Т.е. если вы хотите покрасить стены, либо использовать тонкие обои, какие-то панно, то ПГП не ваш выбор.
Нельзя штробить горизонтально, что усложняет монтаж водоснабжения и водоотведения.
Шумоизоляция. Хоть производители и заявляют 43 дБ, по факту ПГП отличается своей звонкостью и по-факту является резонатором. Видео не передает всей полноты картины, но, да не дадут мне соврать местные пользователи ПГП, что звучит он очень звонко и звукоизоляционные характеристики данного материала находятся где-то в районе нулевых значений. (20 дБ) .
Вывод: ПГП является отличным выбором для тех, кому важны параметры скорости и цены.
2. Газобетонные блоки.
Общий вид стены из газобетонного блока.
Перегородка из газобетона обладает следующими характеристиками:
Тут важно отметить, что в расчет включена и последующая штукатурка блоков. Т.е. цены указаны за перегородку, готовую к дальнейшей отделки.
Газобетонные блоки, являются самым популярным материалом для возведения межкомнатных перегородок. Практически в 70% процентах квартир, которые я просматриваю, именно из блоков возводятся межкомнатные перегородки.
Преимущества блоков:
Сравнительно быстрая скорость возведения перегородок.
Низкая стоимость готовой перегородки.
Хороший показатель звукоизоляции.
При правильно подобранной толщине блока можно штробить горизонтально.
Недостатки блоков:
Честно говоря, я не нашел каких-либо недостатков у перегородок из газобетонных блоков. Он не обладает самой высокой прочностью, лучшими звукоизоляционными характеристиками, не является самый легким материалом, но при использовании для возведения межквартирных перегородок является золотой серединой по параметру "цена/качество".
Вывод: газобетон является отличным выбором для ремонтов среднего ценового сегмента.
3. ГКЛ
Общий вид стены из ГКЛ.
Перегородка из ГКЛ обладает следующими характеристиками:
Расчет указан для ГКЛ-перегородок обшитыми в два слоя листами ГКЛЗ.
Преимущества ГКЛ-перегородок:
Самый высокий показатель звукоизоляции.
Возможность прокладывать внутри стены коммуникации без штробления и ослабления конструкции.
Возможность делать сложные конструкции.
Недостатки ГКЛ-перегородок:
Высокая стоимость.
Малая способность выдерживать динамические нагрузки.
О ГКЛ-перегородках ходит много мифов. Что на них нельзя вешать полку, что стена ломается от малейшего воздействия, что показатели звукоизоляции стремятся к 0. На самом же деле, ГКЛ-перегородки достойно выполняют свою функцию, и единственный, существенный недостаток это цена.
Вывод: ГКЛ-перегородки являются хорошим выбором, когда в рамках квартиры нужны высокие значения звукоизоляции между отдельным помещениями, а так же для реализации сложных дизайнерских решений.
Сравнительная таблица по разным типам материалов.
В завершении, в очередной раз хочу сказать, что данный пост не содержит в себе каких-то аксиом, а отображает мое видение вопроса по межкомнатным перегородкам, основанное на опыте работы с данными материалами.
Так же существует ряд материалов, которые я не рассматриваю в рамках данного поста, поскольку они довольно-таки редко применяются при ремонте квартир.

































