Было очень страшно, но я ввязалась в стройку
В прошлом году я ввязалась в самый крпномасштабный проект своей жизни.
Несмотря ни на что, я приняла решение о начале строительства дома. И, признаюсь, у меня очень много опасений. Полная неизвестность в экономике и невозможности планирования хотя бы на год вперед сильно пугают.
Но и не строить я тоже не могла. Много лет работы и отказ во многом, чтобы реализовать свою мечту. Остановиться означало никогда ее не осуществить. При нынешнем скачке цен есть все шансы больше никогда не догнать стоимость дома. Да и все заработанное быстро обесценится.
Первая компаний, у кого я планировала строиться, очень сильно меня подвела, затянув сроки проектирования более чем на 5 месяцев. Мне пришлось в срочном порядке искать других строителей.
В конце 2021 года я подписала договор на строительство. Но февральские события сильно изменили порядок вещей. В непонятном направлении полетели цены, планы, многие производители.
Что я успела по прежним ценам?
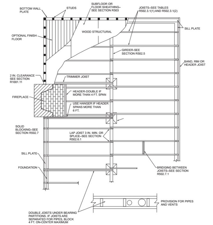
Фундамент. Его я успела забить (он свайный) еще до того как были плановые повышения цен в конце января. И даже присутствовало такое слово, как «скидки»
Каркас дома - его цена зафиксировалась в договоре и меняться могла только до начала производства работ. А цены еще не успели преодолеть рубеж перерасчета смет
Фасады с окрашиванием
Крыша и система наружного водостока и снегозадерживатели
Станцию очистки - я оплатила еще до нового года и ее стоимость вместе с установкой сохраняется.
Монтаж внутреннего водопровода и канализации - они так же были предоплачены и остались в прежнем ценнике. (лучше бы я отказалась от того предложения)
За что пришлось доплачивать?
Да за все остальное!
Мансардные окна к моменту их закупки были распроданы во всем городе. Пришлось заказывать другого производителя, который оказался на 50% дороже.
Окна! Это моя боль! В доме предусмотрено большое количество остекления - около 50 кв. м. Пришлось поменять марку профиля. Хотя на качестве это никаким образом не отразится. Стоимость окон, с учетом замены на более низкую стоимость, выросла на 22%. С учетом количества остекления - это достаточно весомая цифра.
Пока ждала смету на утепление дома была небольшая надежда, что цены на материалы, производимые у нас, не сильно изменятся. Но увы! Стоимость подскочила в 2 раза.
И тут я не могу понять - это объективно такой скачек или растущие аппетиты застройщика «отбить» все что пришлось строить по старым ценам на первом этапе? Но неприятный момент - в смете указана цена на фанеру, которая превышает среднюю по рынку на 400 рублей за квадратный метр
Сантехника - тут 50/50. Успела заказать санфаянс по приемлемым ценам. Но у меня два туалета - второй будет уже по новым ценникам точно.
Почти все остальные строительные материалы. Что-то конечно еще осталось в прежнем ценнике. Но все заранее закупить невозможно. Поэтому придется ориентироваться по обстоятельствам.
Приятные моменты - некоторые пиломатериалы все таки подешевели за 2022 год.
Так дом выглядел в апреле 2022 года.
И так - я по уши в ситуации! Будем выгребать.



















